Onze klanten beoordelen ons met een

9,4

Mignonstraat 3

Wernhout

verkocht

Ook succesvol verkopen?

Omschrijving


STARTERS OPGELET! Wij bieden hier een ruime 2-o-1 kapwoning met garage aan in het prachtige Wernhout. Met de woonkamer voorzien van een palletkachel, de dichte keuken, 3 slaapkamers, een badkamer en een ruime zolder, is er volop ruimte en mogelijkheden.

Is uw nieuwsgierigheid geprikkeld? Twijfel dan niet en plan een bezichtiging in!
Onze makelaar staat klaar om u deze woning met enthousiasme te tonen.

LIGGING
Deze woning is in Wernhout, voorzieningen als een basisschool, een bushalte, een supermarkt en een goede bakkerij vindt u in het dorp.
Het centrum van Zundert met alle voorzieningen is op slechts enkele autominuten.
Zundert heeft volop mogelijkheden voor uw dagelijkse voorzieningen, evenals scholen en sportgelegenheden. Uitvalswegen naar Breda en Antwerpen zijn met ca 10-15 autominuten bereikbaar. Ook de prachtige bossen en vennen met diverse fiets- en ruiterpaden zijn op korte afstand bereikbaar.

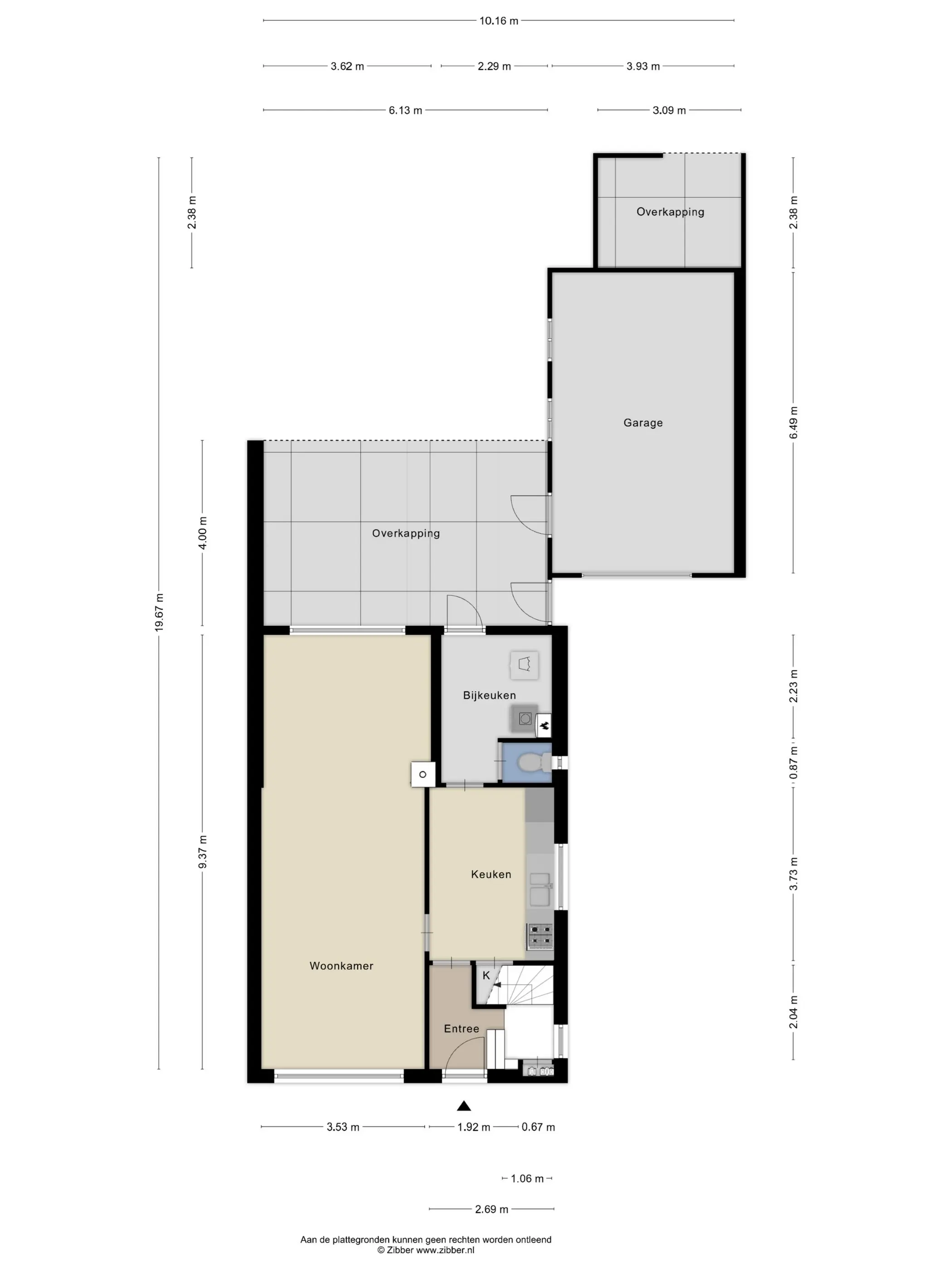
BEGANE GROND
Via de ruime oprit (plaats voor 3 auto’s) bereikt u de voordeur van de entree.

De hal geeft toegang tot de woonkamer, meterkast, de trapopgang van de eerste verdieping en de dichte keuken.

De ruime en lichte woonkamer is voorzien van een sfeervolle palletkachel, de vloer is afgewerkt met zeil en de wanden zijn voorzien van stucwerk. Door de raampartijen heeft deze woonkamer veel lichtinval.

De gesloten keuken is voorzien van een lang keukenblok met diverse onder- en bovenkasten, een rvs spoelbak, 4-pits gaskookplaat, afzuiging, combi-oven en een koel-/vriescombinatie.
Via een loopdeur is de bijkeuken toegankelijk.

In de bijkeuken is een wasmachine-/drogeraansluiting en aansluiting voor de vaatwasser.
Via de bijkeuken komt u in de riante tuin terecht.

Het toilet, tevens gesitueerd in de bijkeuken, is geheel betegeld en is voorzien van een raampje.

EERSTE VERDIEPING
De overloop biedt toegang tot volwaardige 3 slaapkamers, de badkamer en vaste trap naar de tweede verdieping.

Alle 3 de slaapkamers zijn voorzien van een zeilvloer en grote raampartijen.

De compacte badkamer is geheel betegeld en compleet uitgerust met een douchecabine, wastafel en een toilet.


TWEEDE VERDIEPING
De ruime zolder is te bereiken via een vaste trap en is uitermate geschikt voor het creëren van een extra slaapkamer en/of werkkamer. Door de dakkapel is dit een fijne lichte ruimte. Op deze zolder is een airco aanwezig waardoor je zowel in de zomer- als wintermaanden aangenaam boven kunt zitten.

TUIN
De riante achtertuin is voorzien van bestrating, gazon, vaste beplanting en een overkapping.
Vanuit de achtertuin heeft u toegang tot de garage en een overkapping, beide zijn voorzien van elektra.
Door middel van een poort is de oprit toegankelijk.

BIJZONDERHEDEN
- Ruime twee-onder-één- kapwoning met garage
- De woning is voorzien van rolluiken
- Een ruime lichte woonkamer
- Dichte keuken met een lang keukenblok
- Bijkeuken met wasmachine-/drogeraansluiting
- De woning heeft 3 slaapkamers, de zolder biedt de mogelijkheid voor een 4e slaapkamer
- Zonnige achtertuin die veel privacy biedt
- Ruime garage
- Perceel van 343 m2
- Energielabel D
- Gelegen nabij diverse voorzieningen, basisschool, openbaar vervoer en uitvalswegen

MEETINSTRUCTIE NEN2580
De gebruikte meetinstructie volgt de NEN2580-norm. Deze methode biedt een uniforme manier om het gebruiksoppervlak te benaderen. Door variaties in interpretatie, afronding of meetbeperkingen kunnen er toch afwijkingen ontstaan. De feitelijke situatie in het huis is leidend. De verstrekte oppervlakte-informatie is indicatief en mag niet als exact worden beschouwd. “Wat je ziet is wat je koopt” blijft het uitgangspunt.

RECHTSGELDIGE KOOPOVEREENKOMST PAS NA ONDERTEKENING
Een mondeling akkoord tussen particuliere verkoper en koper geldt niet als juridisch bindend. De koop is pas definitief zodra beide partijen de koopakte ondertekenen. Dit volgt uit artikel 7:2 van het Burgerlijk Wetboek. Een bevestiging per e-mail of een ontvangen conceptakte geldt eveneens niet als rechtsgeldige overeenkomst.

WAARBORGSOM OF BANKGARANTIE
Omdat De Huizenbemiddelaar lid is van de Vastgoed Nederland, wordt de koopakte opgesteld volgens het model van NVM, Vastgoed Nederland, Consumentenbond en Vereniging Eigen Huis. Daarin is standaard opgenomen dat een waarborgsom of bankgarantie vereist is, ter hoogte van tien procent van de overeengekomen koopsom.

VERKOOPDOCUMENTATIE
Deze verkoopinformatie is zorgvuldig samengesteld. Toch zijn wij grotendeels afhankelijk van derden voor de inhoudelijke juistheid. Daarom aanvaarden zowel de verkoper als wij geen enkele aansprakelijkheid voor eventuele onjuistheden in de verstrekte gegevens.  

ASBESTCLAUSULE
In woningen die zijn gebouwd vóór 1 juli 1993 is het gebruik van asbesthoudende materialen destijds gebruikelijk geweest, onder meer in (rook)kanalen, dakbeschot, tussenwanden, gevelbekleding, bij verwarmingstoestellen, warmwatervoorzieningen en vloeren. Koper erkent dat er mogelijk asbest is verwerkt. Koper is ervan op de hoogte dat het verwijderen van asbestmaterialen volgens milieuwetgeving onder strikte regels valt. Verkoper wordt gevrijwaard van elke aansprakelijkheid voortvloeiend uit aanwezigheid of verwijdering van asbest in of uit het pand.

OUDERDOMSCLAUSULE
Omdat de woning meer dan 20 jaar oud is, wordt een ouderdomsclausule opgenomen in de koopakte. De technische eisen aan dit pand liggen hierdoor aanzienlijk lager dan bij recente nieuwbouw. Koper aanvaardt dat afwijkingen ten opzichte van moderne bouweisen niet als tekortkoming kunnen worden aangemerkt en kan zich daar bij latere gebreken niet op beroepen.
Lees meer

Kenmerken

Overdracht

Status
verkocht
Aanvaarding
in overleg

Bouw

Soort woning
woonhuis
Soort woonhuis
eengezinswoning
Type woonhuis
2-onder-1-kapwoning
Aantal woonlagen
3
Kwaliteit
normaal
Bouwvorm
bestaande bouw
Bouwjaar
1965
Bouwperiode
1960-1970
Onderhoud binnen
goed
Onderhoud buiten
goed
Dak
zadeldak
Voorzieningen
rolluiken en tv kabel

Energie

Energielabel
D
Verwarming
c.v.-ketel
Warm water
c.v.-ketel
C.V.-ketel
gas gestookte combi-ketel uit 2014 van AWB, eigendom

Oppervlakten en inhoud

Woonoppervlakte
97 m²
Perceeloppervlakte
343 m²
Inhoud
393 m³
Inpandige ruimte oppervlakte
13 m²
Bergruimte oppervlakte
25 m²
Buitenruimte oppervlakte
24 m²

Indeling

Aantal kamers
5
Aantal slaapkamers
3

Buitenruimte

Tuin
achtertuin met een oppervlakte van 207 m² en is gelegen op het zuidwesten

Garage / Schuur / Berging

Garage
vrijstaande stenen garage

Foto's

Locatie


Neem contact met ons op!

Neem contact op
Hoe kunnen wij je helpen?
10:34