Onze klanten beoordelen ons met een

9,4

Wildertsedijk 2C

Zundert

beschikbaar

€ 547.500,- k.k.

Geinteresseerd?

Wij helpen u graag

Omschrijving


Een recent gebouwd, energiezuinig (A+++), driekamerappartement in het centrum van Zundert!
Dit royale appartement is gelegen in het kleinschalige appartementencomplex ‘Albus” op loopafstand naar de Prinsenstraat en de Molenstraat. Het appartement is er één met veel lichtinval en een woonoppervlakte van ca. 124 m2!

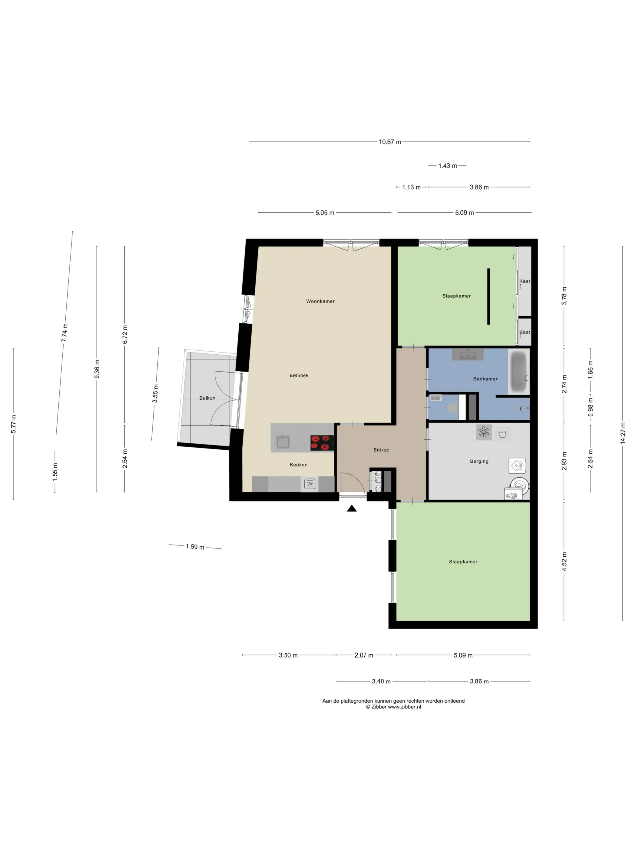
Het driekamerappartement beschikt over een ruime woonkamer, compleet ingerichte open keuken, moderne badkamer, 2 slaapkamers, ruim balkon, een berging van ca. 6 m2 en een eigen parkeerplaats.

LOCATIE
Dit appartement is gelegen in het centrum van Zundert. In de directe omgeving zijn mogelijkheden voor uw dagelijkse voorzieningen, evenals scholen, sportgelegenheden.
Uitvalswegen naar Breda en Antwerpen zijn met ca 10 autominuten bereikbaar. Ook de prachtige bossen en vennen met diverse fiets- en ruiterpaden zijn op korte afstand bereikbaar.

BEGANE GROND
De algemene, afsluitbare entree is voorzien van een intercom en brievenbussen. De drie woonlagen zijn te bereiken met behulp van een lift, maar ook via een afzonderlijke trap. De bergingen en de parkeerplaatsen zijn op het binnenterrein gesitueerd.

APPARTEMENT
De hal is de spil van het appartement en geeft een goede indruk van de ruimte en afwerking die je mag verwachten. In de hal is de meterkast geplaatst. Deze hal biedt toegang tot de woonkamer, 2 slaapkamers, toilet, badkamer en een ruime berging.

De lichte en sfeervolle woonkamer heeft mooie raampartijen die zorgen voor een fijne lichtinval.
De wanden van de woonkamer zijn strak gestuct en de vloer is afgewerkt met een moderne, grootformaat tegelvloer.
Via de woonkamer komt u uit bij het balkon waar u heerlijk kunt zitten. Ook beschikt de woonkamer nog over 2 Franse balkons. Contact met buiten is dus altijd mogelijk.

De open keuken is voorzien van diverse onder-/ en bovenkasten en inbouwapparatuur zoals een koelkast, 4-pits inductiekookplaat met geïntegreerde afzuiging, combi-oven en een vaatwasser.

Slaapkamer 1 met Frans balkon is voorzien van een nette visgraatvloer. Achter de op maat gemaakte wand vind je een handige inbouwkast. Door het prettige lichtinval en de sfeervolle uitstraling kunt u heerlijk tot rust komen.

Slaapkamer 2 is ook strak afgewerkt, voorzien van een moderne tegelvloer en is tevens te gebruiken als werkkamer.

De badkamer is geheel betegeld en voorzien van een inloopdouche, ligbad en een royaal badkamermeubel met wastafel.

Het toilet is deels betegeld en voorzien van een wandcloset met softclose toiletbril en een fonteintje.

De technische ruimte/berging is voorzien van een wasmachine-/drogeraansluiting en hier is tevens de opstelling van de mechanische ventilatie unit en een warmtepomp gesitueerd.

VVE
De VvE kosten zijn ca. € 281,- met daarin inbegrepen de gebruikelijke verzekeringen, beheer, reservering gezamenlijk klein onderhoud. Uiteraard zijn alle stukken via ons kantoor op te vragen.

BIJZONDERHEDEN
- Ruim, instapklaar en sfeervol appartement
- Lichte woonkamer
- Open keuken met inbouwapparatuur
- Ruime slaapkamers
- Gehele appartement is voorzien van vloerverwarming
- Het appartement is geheel geïsoleerd en voorzien van isolerende beglazing
- Voorzien van 10 zonnepanelen
- Fijn balkon met een mooi uitzicht en 3 Franse balkons
- Eigen berging en parkeerplaats
- Energielabel A+++
- Op de parkeerplaats is een voorziening getroffen voor een oplaadstation voor een elektrische auto

MEETINSTRUCTIE NEN2580
De gebruikte meetinstructie volgt de NEN2580-norm. Deze methode biedt een uniforme manier om het gebruiksoppervlak te benaderen. Door variaties in interpretatie, afronding of meetbeperkingen kunnen er toch afwijkingen ontstaan. De feitelijke situatie in het huis is leidend. De verstrekte oppervlakte-informatie is indicatief en mag niet als exact worden beschouwd. “Wat je ziet is wat je koopt” blijft het uitgangspunt.

RECHTSGELDIGE KOOPOVEREENKOMST PAS NA ONDERTEKENING
Een mondeling akkoord tussen particuliere verkoper en koper geldt niet als juridisch bindend. De koop is pas definitief zodra beide partijen de koopakte ondertekenen. Dit volgt uit artikel 7:2 van het Burgerlijk Wetboek. Een bevestiging per e-mail of een ontvangen conceptakte geldt eveneens niet als rechtsgeldige overeenkomst.

WAARBORGSOM OF BANKGARANTIE
Omdat De Huizenbemiddelaar lid is van de Vastgoed Nederland, wordt de koopakte opgesteld volgens het model van NVM, Vastgoed Nederland, Consumentenbond en Vereniging Eigen Huis. Daarin is standaard opgenomen dat een waarborgsom of bankgarantie vereist is, ter hoogte van tien procent van de overeengekomen koopsom.

VERKOOPDOCUMENTATIE
Deze verkoopinformatie is zorgvuldig samengesteld. Toch zijn wij grotendeels afhankelijk van derden voor de inhoudelijke juistheid. Daarom aanvaarden zowel de verkoper als wij geen enkele aansprakelijkheid voor eventuele onjuistheden in de verstrekte gegevens.

Bedankt voor uw interesse in deze woning! We nodigen u graag uit om een kijkje te komen nemen. Tijdens de bezichtiging laten we u zien hoe het huis er momenteel uitziet, maar we denken ook graag met u mee over de mogelijkheden. Misschien ziet u het net even anders, en dat begrijpen we maar al te goed. We staan open voor uw ideeën en bespreken graag hoe u de ruimtes naar uw eigen smaak en wensen kunt aanpassen. Vaak zijn er verrassend eenvoudige manieren om een woning helemaal naar uw hand te zetten.
Een bouwtechnische keuring is nimmer een probleem.

Heeft u vragen of wilt u een afspraak maken? Neem dan gerust contact met ons op, telefonisch of via e-mail. We helpen u graag verder.
Lees meer

Kenmerken

Overdracht

Vraagprijs
€ 547.500,- k.k.
Status
beschikbaar
Aanvaarding
in overleg

Bouw

Soort woning
appartement
Soort appartement
galerijflat
Aantal woonlagen
1
Woonlaag
2
Kwaliteit
normaal
Bouwvorm
bestaande bouw
Bouwjaar
2021
Bouwperiode
Na 2011
Open portiek
nee
Onderhoud binnen
uitstekend
Onderhoud buiten
uitstekend
Dak
plat dak
Voorzieningen
mechanische ventilatie, tv kabel, lift en zonnecollectoren

Energie

Energielabel
A+++
Verwarming
vloerverwarming geheel en warmtepomp

Oppervlakten en inhoud

Woonoppervlakte
124 m²
Bergruimte oppervlakte
5 m²
Buitenruimte oppervlakte
7 m²

Indeling

Aantal kamers
3
Aantal slaapkamers
2

Garage / Schuur / Berging

Schuur/berging
vrijstaand hout

Plattegronden

Locatie


Neem contact met ons op!

Neem contact op
Hoe kunnen wij je helpen?
12:42